Karla Solís
Karla Solís
  • Cell: +529999551484
  • Office: 9999551484
  • Email: plataformayucatan@gmail.com

EN VENTA TERRENO RESIDENCIAL LISTO PARA ESCRITURAR EN DZITYÁ

Dzityá, Mérida

$1,158,150 For Sale

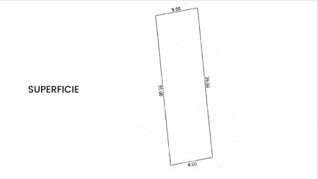
  • 330.9 m² Lot Size
  • 35 m Lot Length
  • 9.5 m Lot Width
  • EB-UM8118 ID
Description

Oportunidad de 6 terrenos residenciales ubicados en Dzitya, cerca del fraccionamiento Las Américas

6 fracciones juntas
Ideal para casas residenciales

Medidas:
9.50 M2 de FRENTE
35.00 M2 de FONDO
Superficie total: 330.90 M2 C/U

Precio: $1,158,150.00

Características:
Calle pavimentada
Servicio de luz a pie del terreno
Propiedad privada
Libre de gravamen
Listo para escriturar

Karla Solís
Karla Solís
  • Cell: +529999551484
  • Office: 9999551484
  • Email: plataformayucatan@gmail.com